Обяви За нас Контакти
Продава 1-СТАЕН
град София, Витоша
86 900 €
169 961.63 лв.

(1 975 €, 3 862.76 лв./m2)
Цената е без ДДС
История на цената
Коригирана в 3:10 на 23 октомври, 2025 год.
Обявата е посетена 513 пъти.
Площ:
44 m2
Етаж:
6-ти от 9
Газ:
НЕ
ТEЦ:
НЕ
Строителство:
Тухла, 2026 г.

Описание на имота:


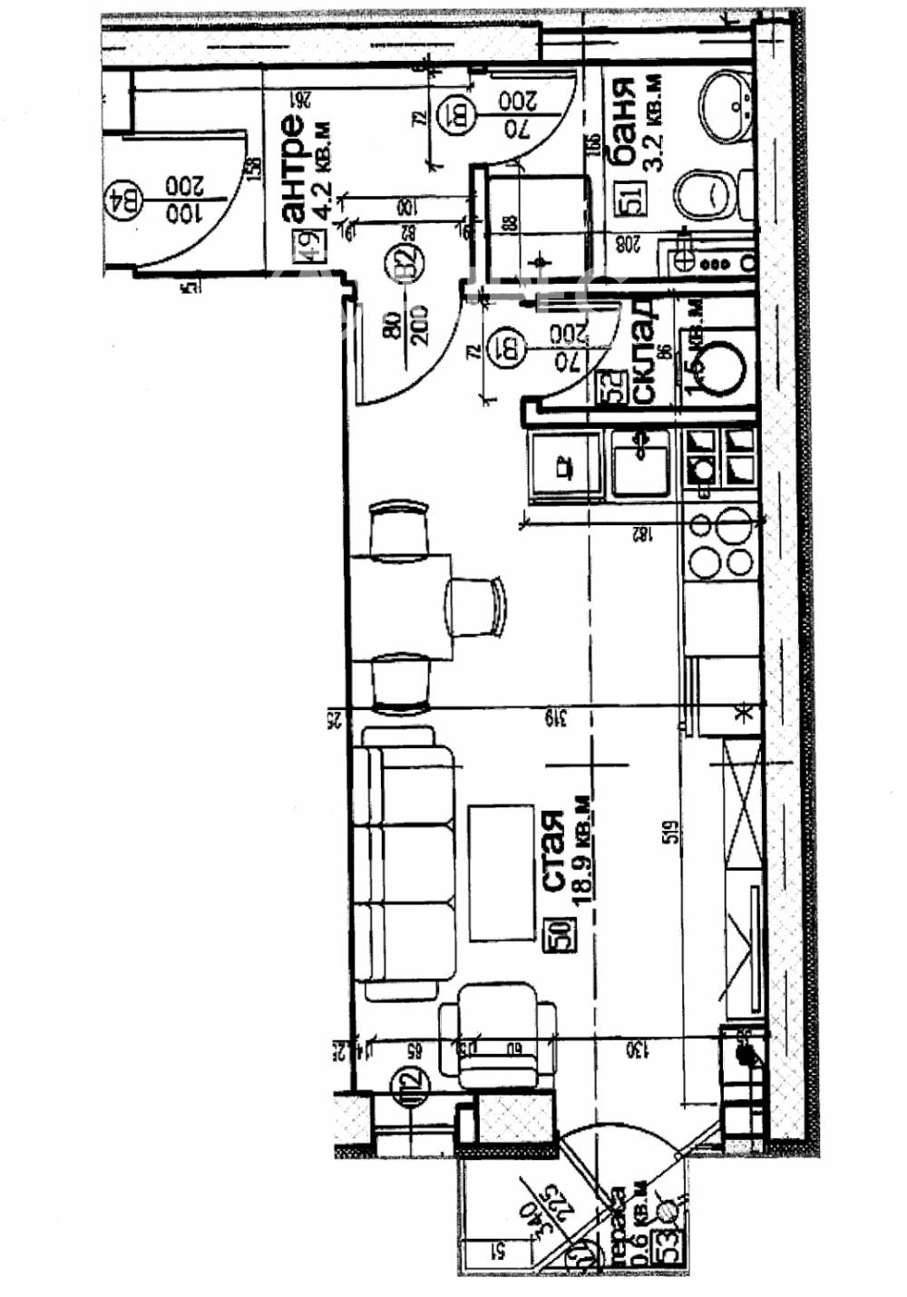
Апартамент с площ 44,46 кв. На 6-ти етаж . Състои се от входно антре, еднопространствено помещение с кухненски бокс. -18,9 кв.м., баня с WC и складово помещение. Асансьор. Отопление друго. Изложение С/З.

Цената е без ДДС!


Намира се в новострояща се сграда в кв.Витоша . В близост до Симеоновско шосе и околовръстен път
Сградата е в строеж.

Тухла !

Има АКТ 14 ! Очаква се АКТ 16 -м.декември 2026г
Нова строителство !

С възможност за подземно парко място!

В близост редица търговски обекти и супермаркети.

Подходящо за инвестиция!

В близост до бъдеща Метро станция!




Обади се сега и цитирай този код 651608
Виж всички обяви в address.bazar.bg или тук
Особености
Тухла
Асансьор
С гараж
За контакт:
088 21 21 450
Брокер:
Клиентски център АДРЕС Кантора Лозенец
088 21 21 450
Още оферти от брокера: Продава | Дава под наем | Купува | Наема
Агенция:
АДРЕС НЕДВИЖИМИ ИМОТИ
088 21 21 450
АДРЕС НЕДВИЖИМИ ИМОТИ logo
Медал за прослужено време
В imot.bg от 2004 г.
address.imot.bg
Адрес:
област София, гр. София, пл. Света Неделя No 4, ет. 6
http://www.address.bg
ИЗПРАТИ ЗАПИТВАНЕ
ИЗПРАТИ ЗАПИТВАНЕТО

Продава 1-СТАЕН
град София, Витоша
Обява: 1a175870441238989

86 900 €
169 961.63 лв.
История на цената
(1 975 €, 3 862.76 лв./m2)

Цената е без ДДС
ЗАПАЗИ ОБЯВАТА

Местоположение: град София, Витоша

Допълнителни данни за имотите в района и сравнение с други райони: Търсене в АРХИВ 2013 - 2025 г.











Добави/редактирай
вид имот и район
*Средните цени са определени чрез медиана стойност.