Обяви За нас Контакти
Продава 2-СТАЕН
град София, Младост 4
204 000 €
398 989.32 лв.

(3 000 €, 5 867.49 лв./m2)
Цената е без ДДС
История на цената
Коригирана в 3:10 на 24 януари, 2026 год.
Обявата е посетена 1031 пъти.
Площ:
68 m2
Етаж:
7-ми от 9
Газ:
НЕ
ТEЦ:
ДА
Строителство:
Тухла, 2025 г.

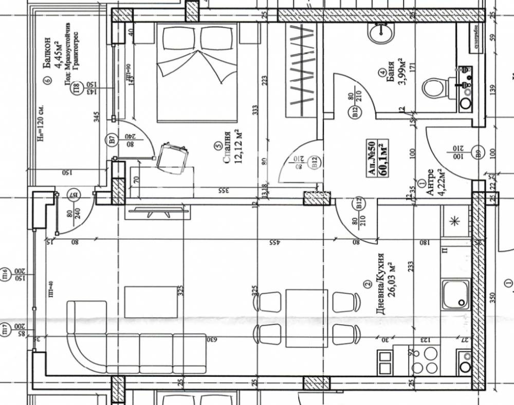
Описание на имота:


С Акт 16 / Разрешение за ползване/ от февруари 2025г.!Представяме на Вашето внимание, двустаен апартамент с прилежащо мазе, разпределен функционално по следния начин: входно антре, баня с тоалетна, просторна дневна с кухня, спалня и тераса/лоджия с излаз и от двете стаи. Статут на апартамент. Има възможност за закупуване на външно паркомясто срещу допълнителна цена. Отоплението е на ТЕЦ, като във всяка стая има изводи за климатици. Жилището е завършено до ключ, като са положени подови настилки от ламинат в стаите и теракот на пода, боядисани стени и тавани във всички помещения, завършена баня с плочки на под и стени с монтирана тоалетна, мивка, шкаф с две чекмеджета, монтирана блиндирана входна и интериорни врати, монтирани контакти и ключове, монтирани радиатори и лира в банята. Цената е без ДДС!
Сградата се намира в непосредствена близост до големи хранителни вериги магазини, спирки на градски транспорт, детски градини, училище, Бизнес парк, заведения за хранене, на седем минути от метростанция Бизнес парк.
Конструкцията на сградата е от монолитен стоманобетонен скелет с безгредови плочи с дебелина 18 см.. Плосък покрив от стоманобетонна конструкция. Изградени са ново водопроводно и канализационно отклонение към съществуващ канал и водопровод. Във всеки апартамент са монтирани, входни блиндирани врати, индивидуални водомерни възли с дистанционно отчитане. До входната врата на всяко жилище е монтирана по една видеодомофонна гарнитура. Положена по фасадата и под фундаментална плоча два пласта хидро и топлоизолация. Петкамерна дограма. Луксозни общи части с контролиран достъп и видеонаблюдение.
Предимствата на сградата са безспорното високо качество на материали и изпълнение, изградена от доказан инвеститор. Район с изградена инфраструктора. Сградата е с настоящ етап Акт 16 /Разрешение за ползване/, от февруари 2025г.. Възможност за кредитиране от банка.
Обади се сега и цитирай този код 633334
Особености
Тухла
Асансьор
С гараж
За контакт:
088 21 21 450
Брокер:
Клиентски център АДРЕС Кантора Южни райони
088 21 21 450
Още оферти от брокера: Продава | Дава под наем | Купува | Наема
Агенция:
АДРЕС НЕДВИЖИМИ ИМОТИ
088 21 21 450
АДРЕС НЕДВИЖИМИ ИМОТИ logo
Медал за прослужено време
В imot.bg от 2004 г.
address.imot.bg
Адрес:
област София, гр. София, пл. Света Неделя No 4, ет. 6
http://www.address.bg
ИЗПРАТИ ЗАПИТВАНЕ
ИЗПРАТИ ЗАПИТВАНЕТО

Продава 2-СТАЕН
град София, Младост 4
Обява: 1b176424480569580

204 000 €
398 989.32 лв.
История на цената
(3 000 €, 5 867.49 лв./m2)

Цената е без ДДС
ЗАПАЗИ ОБЯВАТА

Местоположение: град София, Младост 4

Допълнителни данни за имотите в района и сравнение с други райони

Покажи

Период

и 1 месец

* Средните цени са определени чрез медианна стойност