Обяви За нас Контакти
Продава 2-СТАЕН
град София, Витоша
200 000 €
391 166.00 лв.

(2 500 €, 4 889.58 лв./m2)
Не се начислява ДДС
История на цената
Публикувана в 15:10 на 8 декември, 2025 год.
Обявата е посетена 35 пъти.
Площ:
80 m2
Етаж:
2-ри от 5
Газ:
НЕ
ТEЦ:
НЕ
Строителство:
Тухла, 1996 г.

Описание на имота:


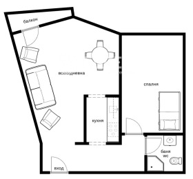
2 стаен апартамент в кв. Витоша, ул. Асен Разцветников. Апартаментът е с площ 80 кв.м. / 71 ЗП /, на етаж 2 от 5 в тухлена сграда от 1996г. Предлага се напълно обзаведен, южен, със следното разпределение: предверие, всекидневна с трапезария, кухненски бокс, спалня, баня с тоалетна, тераса. Свободно паркиране на паркинг пред сгадата. Отоплението е на ток. Подходящ както за живеене, така и за инвестиция!
кв. Витоша, ул. Асен Разцветников
Тухлена сграда от 1996г, с добре поддържани общи части, контрол на достъп. Няма асансьор!
етаж, изложение, обзаведен, готов за нанасяне!
Обади се сега и цитирай този код 677956
Особености
Тухла
Обзаведен
За контакт:
088 21 21 450
Брокер:
Клиентски център АДРЕС Кантора София Юг
088 21 21 450
Още оферти от брокера: Продава | Дава под наем | Купува | Наема
Агенция:
АДРЕС НЕДВИЖИМИ ИМОТИ
088 21 21 450
АДРЕС НЕДВИЖИМИ ИМОТИ logo
Медал за прослужено време
В imot.bg от 2004 г.
address.imot.bg
Адрес:
област София, гр. София, пл. Света Неделя No 4, ет. 6
http://www.address.bg
ИЗПРАТИ ЗАПИТВАНЕ
ИЗПРАТИ ЗАПИТВАНЕТО

Продава 2-СТАЕН
град София, Витоша
Обява: 1b176519944424264

200 000 €
391 166.00 лв.
История на цената
(2 500 €, 4 889.58 лв./m2)

Не се начислява ДДС
ЗАПАЗИ ОБЯВАТА

Местоположение: град София, Витоша