Обяви За нас Контакти
Продава 2-СТАЕН
град София, Слатина
214 000 €
418 547.62 лв.

(2 518 €, 4 924.78 лв./m2)
Цената е с включено ДДС
История на цената
Коригирана в 3:10 на 15 март, 2026 год.
Обявата е посетена 950 пъти.
Площ:
85 m2
Етаж:
3-ти от 7
Газ:
НЕ
ТEЦ:
ДА
Строителство:
Тухла, Ще бъде въведен в експлоатация 2027 г.

Описание на имота:


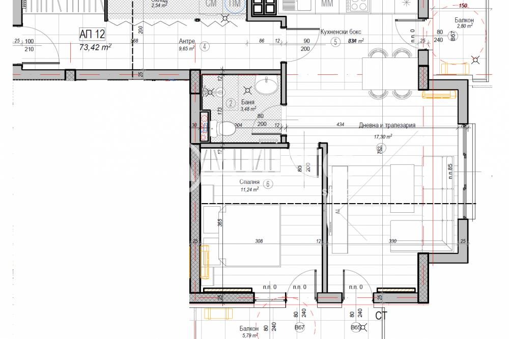
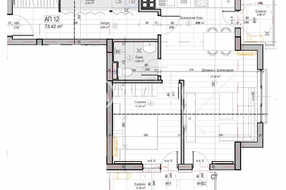
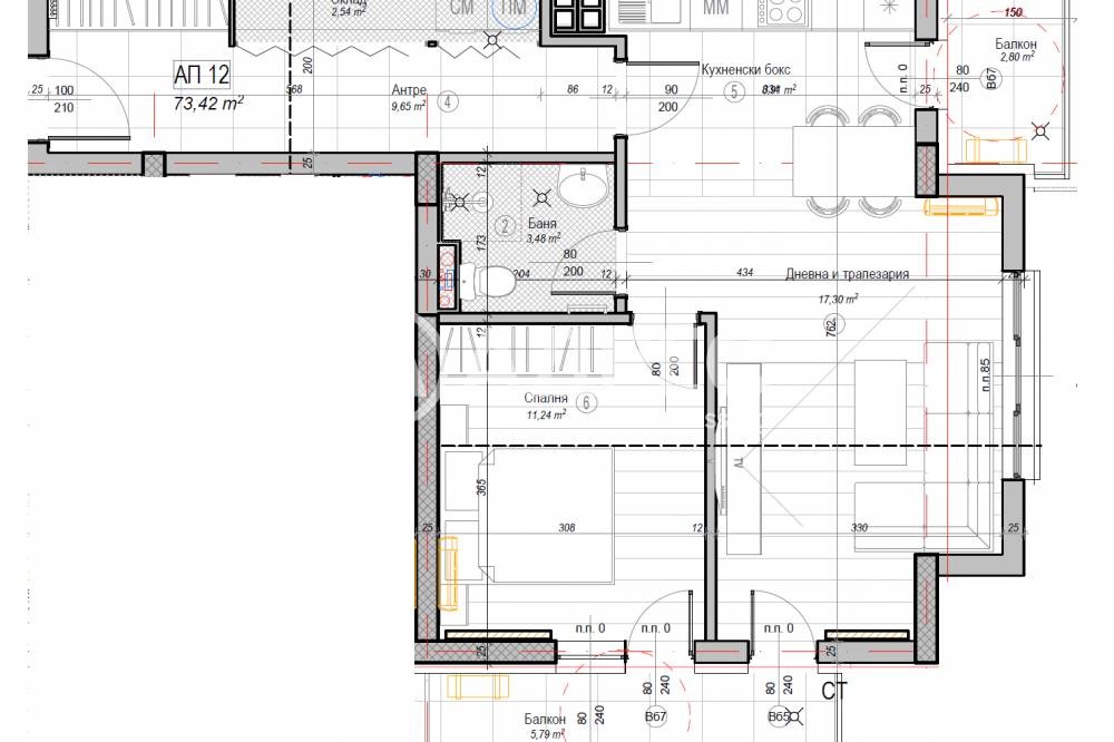
Прекрасен двустаен апартамент на етаж трети на кота +5,70м, с възможност за преустройство в тристаен. Жилището е с РЗП-84.06м2 и ЗП-73,42м2. Апартаментът се състои от: антре, голяма дневна с кухненски бокс и трапезария-25,64м2, спалня-11,24м2, баня с тоалетна-3,48м2 и балкон -2,80м2. Налични ПМ и гаражи. Цени с ДДС. Без комисион.

Сграда с характер и детайл, създадена за модерния градски човек, който не прави компромиси с качеството. С обща РЗП 3986,38 кв.м, проектът се отличава с изчистена архитектура, функционални разпределения и усещане за дискретен престиж. Подземните и наземните гаражи, както и външните паркоместа, осигуряват комфорт и удобство за всяко домакинство.
Отоплението е централно чрез Топлофикация София , а предвидените изводи за климатици и бойлери дават възможност за индивидуално решение и прецизност във финалния завършек.

Сградата е с комплексна фасадна топлоизолация 12 см, PVC дограма 5 7 камерна и висок клас довършителни работи в общите части, създаващи спокойна и подчертано стилна атмосфера. Инсталираният асансьор Orona (Испания) допълва усещането за надеждност и комфорт. Това е архитектура, която говори сама за себе си изчистена, качествена, съвременна, създадена да бъде дом с висока стойност във времето.
Автобус 1,5,6,11,75,5Б,123,288 404,9; Трамвай 23,21 ; близо до бъдеща Метростанция.
Висок клас строителство, реномиран инвеститор с множество завършени сгради.
Отлична локация, район с изградена инфраструктура, бъдеща метростанция, детска градина, училища, магазни.
Обади се сега и цитирай този код 675400
Особености
Тухла
Асансьор
За контакт:
088 21 21 450
Брокер:
Клиентски център АДРЕС Кантора София Запад
088 21 21 450
Още оферти от брокера: Продава | Дава под наем | Купува | Наема
Агенция:
АДРЕС НЕДВИЖИМИ ИМОТИ
088 21 21 450
АДРЕС НЕДВИЖИМИ ИМОТИ logo
Медал за прослужено време
В imot.bg от 2004 г.
address.imot.bg
Адрес:
област София, гр. София, пл. Света Неделя No 4, ет. 6
http://www.address.bg
ИЗПРАТИ ЗАПИТВАНЕ
ИЗПРАТИ ЗАПИТВАНЕТО

Продава 2-СТАЕН
град София, Слатина
Обява: 1b176606342200710

214 000 €
418 547.62 лв.
История на цената
(2 518 €, 4 924.78 лв./m2)

Цената е с включено ДДС
ЗАПАЗИ ОБЯВАТА

Местоположение: град София, Слатина

Допълнителни данни за имотите в района и сравнение с други райони

Покажи

Период

и 3 месеца

* Средните цени са определени чрез медианна стойност