Обяви За нас Контакти
Продава 2-СТАЕН
град София, Левски
146 734 €
286 986.76 лв.

(1 726 €, 3 375.76 лв./m2)
Не се начислява ДДС
История на цената
Публикувана в 11:35 на 24 февруари, 2026 год.
Обявата е посетена 21 пъти.
Площ:
85 m2
Етаж:
2-ри от 6
Газ:
НЕ
ТEЦ:
НЕ
Строителство:
Тухла, 2027 г.

Описание на имота:


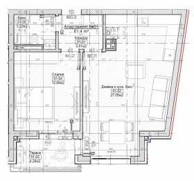
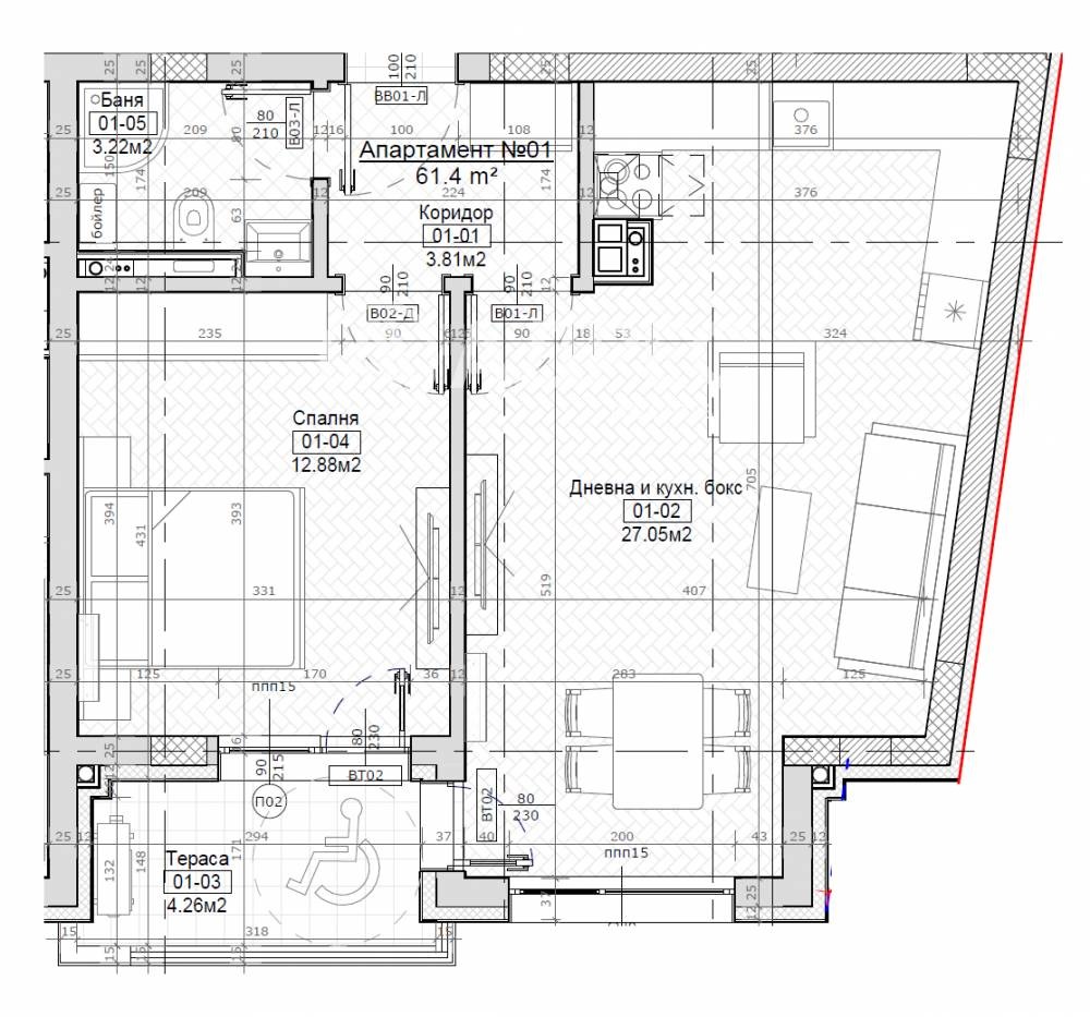
Апартамент 1 със склад 4. Двустаен апартамент на етаж втори, кота +3,20м. с РЗП- 84,33кв.м. и ЗП-61,40кв.м. Разпределение: антре, голяма дневна с кухненски бокс и трапезария-27,05кв.м. , спалня- 12,88кв.м. баня с тоалетна -3,22кв.м. и тераса-4,26кв.м. Налични ПМ и гаражи.

Нова шестетажна, жилищна сграда в кв. Левски с 16 апартамента 11 двустайни и 5 тристайни, с гаражи и паркоместа. Разработена е със сутерен, партер, три етажа и две мансардни нива. В подземното ниво са ситуирани гаражи и паркоместа. На партерното ниво има гаражи, жилище и открити паркоместа. Останалите етажи са решени с двустайни и тристайни апартаменти. Складове към всеки имот включени в цената. Предвидено отопление с климатици мултисплит система.
Комуникативна локация с бърз достъп до централните части на града, училища, детски градини, магазини и градски транспорт.
Качествена енергийно ефективна сграда с луксозни общи части. Изпълнява се с висок клас материали: Тухли Wienerberger, Топлоизолационна система BAUMIT, Шесткамерна PVC дограма с троен стъклопакет, Луксозни общи части. Паркоместа 25 000 ; Гаражи от 35 000
Район с изградена инфраструктура.
Обади се сега и цитирай този код 685483
Особености
Тухла
Асансьор
За контакт:
088 21 21 450
Брокер:
Клиентски център АДРЕС Кантора София Запад
088 21 21 450
Още оферти от брокера: Продава | Дава под наем | Купува | Наема
Агенция:
АДРЕС НЕДВИЖИМИ ИМОТИ
088 21 21 450
АДРЕС НЕДВИЖИМИ ИМОТИ logo
Медал за прослужено време
В imot.bg от 2004 г.
address.imot.bg
Адрес:
област София, гр. София, пл. Света Неделя No 4, ет. 6
http://www.address.bg
ИЗПРАТИ ЗАПИТВАНЕ
ИЗПРАТИ ЗАПИТВАНЕТО

Продава 2-СТАЕН
град София, Левски
Обява: 1b177192570370169

146 734 €
286 986.76 лв.
История на цената
(1 726 €, 3 375.76 лв./m2)

Не се начислява ДДС
ЗАПАЗИ ОБЯВАТА

Местоположение: град София, Левски

Допълнителни данни за имотите в района и сравнение с други райони

Покажи

Период

и 2 месеца

* Средните цени са определени чрез медианна стойност