Обяви 0 За нас Контакти
Продава 2-СТАЕН
град София, Малинова долина
159 500 €
311 954.89 лв.

(2 185 €, 4 273.49 лв./m2)
Не се начислява ДДС
История на цената
Коригирана в 18:25 на 22 април, 2026 год.
Обявата е посетена 1311 пъти.
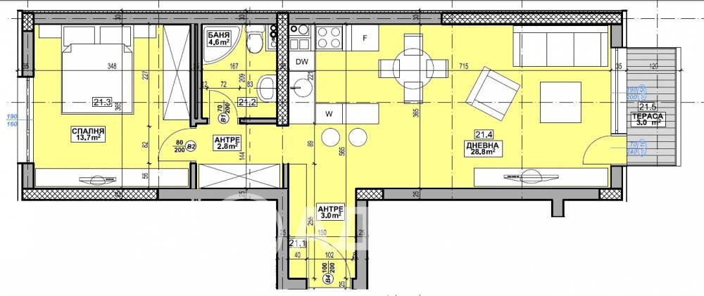
Площ:
73 m2
Етаж:
2-ри от 4
Газ:
НЕ
ТEЦ:
НЕ
Строителство:
Тухла, Въведен в експлоатация 2026 г.

Описание на имота:


Продава се двустаен апартамент в кв. Малинова долина, с нисък процент общи части /10.8 м2 общи части/, прилежащо мазе 2,5 м2. Апартамента се състои всекидневна с кухня, спалня, баня с тоалетна, антре, коридор и тераса. Има възможност за усвояване на голям входен коридор към апартамента!





В близост до улиците Едуард Генов, Проф. Живко Сталев, Мирела Френи.
Сграда с акт 14.
Отлично местоположение, добра цена, практично разпределение, без тежести върху имота. Има възможност за усвояване на голям входен коридор към апартамента!

Чудесна инвестиция или нов дом!
Обади се сега и цитирай този код 683494
Особености
Тухла
Асансьор
За контакт:
088 21 21 450
Брокер:
Клиентски център АДРЕС Кантора Бизнес парк
088 21 21 450
Още оферти от брокера: Продава | Дава под наем | Купува | Наема
Агенция:
АДРЕС НЕДВИЖИМИ ИМОТИ
088 21 21 450
АДРЕС НЕДВИЖИМИ ИМОТИ logo
Медал за прослужено време
В imot.bg от 2004 г.
address.imot.bg
Адрес:
област София, гр. София, пл. Света Неделя No 4, ет. 6
http://www.address.bg
ИЗПРАТИ ЗАПИТВАНЕ
ИЗПРАТИ ЗАПИТВАНЕТО

Продава 2-СТАЕН
град София, Малинова долина
Обява: 1b177339061173154

159 500 €
311 954.89 лв.
История на цената
(2 185 €, 4 273.49 лв./m2)

Не се начислява ДДС
ЗАПАЗИ ОБЯВАТА

Местоположение: град София, Малинова долина

Допълнителни данни за имотите в района и сравнение с други райони

Покажи

Период

и 5 месеца

* Средните цени са определени чрез медианна стойност