Обяви За нас Контакти
Продава 2-СТАЕН
град София, Банишора
220 880 €
432 003.73 лв.

(2 630 €, 5 143.83 лв./m2)
Не се начислява ДДС
История на цената
Публикувана в 15:15 на 17 март, 2026 год.
Обявата е посетена 32 пъти.
Площ:
84 m2
Етаж:
2-ри от 5
Газ:
НЕ
ТEЦ:
НЕ
Строителство:
Тухла, Въведен в експлоатация 2026 г.

Описание на имота:


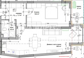
Двустаен апартамент с източно изложение, състоящ се от всекидневна с кухненски бокс, спалня, баня с тоалетна, тераса и мазе. Възможност за закупуване на подземно парко място.
кв. Банишора
Пет етажната сграда разполага с четиринадесет апартамента, източно и западно изложение.

- Седем двустайни, шест тристайни, един четиристаен апартамент.

Площ от 77кв.м до 132кв.м.

Двоен зид от тухли и между тях 5 см звукоизолационна вата. На пода, звукоизолационна подложка против шум, термоизолация 10 см. Сграда с висока енергийна ефективност. Пет камерна дограма с троен стъклопакет. Отопление на ток и при избор може и термо помпа. Висок клас асансьор.


Пешеходно разтояние до центъра на София. В близост има магазини, супермаркети, аптеки, детски градини, училища, спирки на всякакъв градски транспорт и метро.
Обади се сега и цитирай този код 659879
Особености
Тухла
Асансьор
За контакт:
088 21 21 450
Брокер:
Клиентски център АДРЕС Белите Брези
088 21 21 450
Още оферти от брокера: Продава | Дава под наем | Купува | Наема
Агенция:
АДРЕС НЕДВИЖИМИ ИМОТИ
088 21 21 450
АДРЕС НЕДВИЖИМИ ИМОТИ logo
Медал за прослужено време
В imot.bg от 2004 г.
address.imot.bg
Адрес:
област София, гр. София, пл. Света Неделя No 4, ет. 6
http://www.address.bg
ИЗПРАТИ ЗАПИТВАНЕ
ИЗПРАТИ ЗАПИТВАНЕТО

Продава 2-СТАЕН
град София, Банишора
Обява: 1b177375332561003

220 880 €
432 003.73 лв.
История на цената
(2 630 €, 5 143.83 лв./m2)

Не се начислява ДДС
ЗАПАЗИ ОБЯВАТА

Местоположение: град София, Банишора

Допълнителни данни за имотите в района и сравнение с други райони

Покажи

Период

и 3 месеца

* Средните цени са определени чрез медианна стойност