Обяви За нас Контакти
Продава 2-СТАЕН
град София, Обеля 2
91 232 €
178 434.28 лв.

(1 573 €, 3 076.52 лв./m2)
Не се начислява ДДС
История на цената
Публикувана в 10:05 на 3 април, 2026 год.
Обявата е посетена 48 пъти.
Площ:
58 m2
Етаж:
4-ти от 8
Газ:
НЕ
ТEЦ:
ДА
Строителство:
Тухла, Ще бъде въведен в експлоатация 2027 г.

Описание на имота:


Без комисион от купувача. Гъвкави схеми на плащане. Цените са без ДДС.

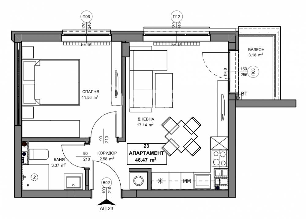
Бюджетен двустаен апартамент с РЗП- 57,02м?, ЗП-46,47м? с включен склад 23-2,33м?. Разпределение: коридор, дневна с кухненски бокс и трапезария, спалня, баня с тоалетна, балкон. Отопление ТЕЦ. Изложение СЕВЕР/ИЗТОК.

Съвременен жилищен комплекс от затворен тип с контролиран достъп, създаден да осигури спокойствие, сигурност и качествен начин на живот. Проектът се отличава с модерна визия, висок клас строителство и добре планирана среда, съчетаваща функционалност и удобство за ежедневието. Отоплението е предвидено на ТЕЦ. Жилищата ще бъдат с висок клас дограма с троен стъклопакет. Общите части са луксозно завършени с гранит, висок клас асансьор.

Сградата е на 8 етажа с РЗП-5 279 кв.м. върху които са разположени: 47 апартамента, паркоместа и гаражи.

Етапи на строителство:


АКТ 14 декември - 2026 г.


АКТ 15 ноември - 2027 г.


АКТ 16 декември- 2027 г.


Схеми на плащане:

30% на ПД; 30% на АКТ-14; 30% на АКТ-15; 10% на АКТ-16

20 %на ПД; 80% след АКТ16

Всички обекти в сградата се предлагат БЕЗ КОМИСИОН ОТ КУПУВАЧА на цени на ИНВЕСТИТОРА.
Отлична локация за района, удобен транспорт: Метростанция Обеля на 5 минути. Трамвай 6, Автобуси 30,31,41,26 по бул. Ломско шосе .


Модерна жилищна сграда с окачена фасада и изпълнена с висококачествени материали, гарантиращи естетика, енергийна ефективност и дълготрайност.
Обеля-2 е бързоразвиващ се квартал с добре изградена инфраструктура. В близост до сградата има:

Детски градини: ДГ 82 Джани Родари ; ДГ 5 .

Училища: ЧОУ Дружба ; ЧПГ Дружба ; 140СУ Иван Богоров .

Медицински услуги: 30-ти ДКЦ, 16-та Стоматологична поликлиника, аптеки.

Магазини и услуги: Супермаркет Т Маркет , Хипермаркет БИЛА , банки, заведения, бензиностанции и др.

Спорт и почивка: Спортен център Кристал .
Обади се сега и цитирай този код 690198
Особености
Тухла
Асансьор
За контакт:
088 21 21 450
Брокер:
Клиентски център АДРЕС Кантора София Запад
088 21 21 450
Още оферти от брокера: Продава | Дава под наем | Купува | Наема
Агенция:
АДРЕС НЕДВИЖИМИ ИМОТИ
088 21 21 450
АДРЕС НЕДВИЖИМИ ИМОТИ logo
Медал за прослужено време
В imot.bg от 2004 г.
address.imot.bg
Адрес:
област София, гр. София, пл. Света Неделя No 4, ет. 6
http://www.address.bg
ИЗПРАТИ ЗАПИТВАНЕ
ИЗПРАТИ ЗАПИТВАНЕТО

Продава 2-СТАЕН
град София, Обеля 2
Обява: 1b177519992971442

91 232 €
178 434.28 лв.
История на цената
(1 573 €, 3 076.52 лв./m2)

Не се начислява ДДС
ЗАПАЗИ ОБЯВАТА

Местоположение: град София, Обеля 2

Допълнителни данни за имотите в района и сравнение с други райони

Покажи

Период

и 3 месеца

* Средните цени са определени чрез медианна стойност