Обяви За нас Контакти
Продава 2-СТАЕН
град София, Малинова долина
148 460 €
290 362.52 лв.

(2 284 €, 4 467.12 лв./m2)
Не се начислява ДДС
История на цената
Публикувана в 15:06 на 7 април, 2026 год.
Обявата е посетена 18 пъти.
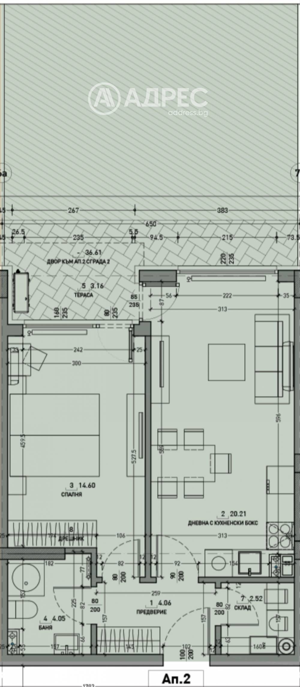
Площ:
65 m2
Етаж:
1-ви от 4
Газ:
ДА
ТEЦ:
НЕ
Строителство:
Тухла, Ще бъде въведен в експлоатация 2027 г.

Описание на имота:


Комплекс състоящ се от три жилищни сгради със собствен двор и подземен паркинг.
Обектът се намира близо до кръстовището на бул. Симеоновско шосе и Околовръстен път.

Локацията осигурява бърз достъп до централната част на столицата през Симеоновско шосе, както и до всички останали квартали, чрез Околовръстен път.
Три успоредни четириетажни жилищни сгради, разположени в общ парцел, с изложения откриващи гледки към планината и града.
Три сгради със собствен озеленен двор и подземен паркинг. В двора са предвидени за поставяне и детски площадки. Всички тези одобства са на разположение на живущите.

Сградите са ориентирани така, че да осигурят мнескриваеми гледки към Витоша и града.
Обади се сега и цитирай този код 668925
Особености
Тухла
Асансьор
За контакт:
088 21 21 450
Брокер:
Клиентски център АДРЕС Кантора София Запад
088 21 21 450
Още оферти от брокера: Продава | Дава под наем | Купува | Наема
Агенция:
АДРЕС НЕДВИЖИМИ ИМОТИ
088 21 21 450
АДРЕС НЕДВИЖИМИ ИМОТИ logo
Медал за прослужено време
В imot.bg от 2004 г.
address.imot.bg
Адрес:
област София, гр. София, пл. Света Неделя No 4, ет. 6
http://www.address.bg
ИЗПРАТИ ЗАПИТВАНЕ
ИЗПРАТИ ЗАПИТВАНЕТО

Продава 2-СТАЕН
град София, Малинова долина
Обява: 1b177556357960483

148 460 €
290 362.52 лв.
История на цената
(2 284 €, 4 467.12 лв./m2)

Не се начислява ДДС
ЗАПАЗИ ОБЯВАТА

Местоположение: град София, Малинова долина

Допълнителни данни за имотите в района и сравнение с други райони

Покажи

Период

и 3 месеца

* Средните цени са определени чрез медианна стойност