Обяви За нас Контакти
Продава 2-СТАЕН
град София, Овча купел 2
140 000 €
273 816.20 лв.

(2 333 €, 4 562.95 лв./m2)
Не се начислява ДДС
История на цената
Публикувана в 13:15 на 24 април, 2026 год.
Обявата е посетена 69 пъти.
Площ:
60 m2
Етаж:
4-ти от 9
Газ:
НЕ
ТEЦ:
ДА
Строителство:
Панел, Въведен в експлоатация 1980 - 1989 г.

Описание на имота:


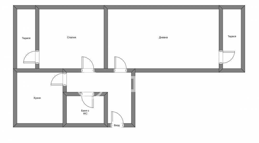
АДРЕС недвижими имоти, прeдставя ексклузивно, двустаен апартамент с възможност за преустройство на тристаен със следното разпределение: входно антре с голям вграден гардероб, просторна дневна с тераса пред него, спалня с тераса пред нея с излаз и от кухнята), отделна кухня(възможност за втора спалня - детска), баня с тоалетна. Към жилището има прилежащо мазе от 2 кв.м.. Обявената площ на имота е чиста застроена площ. Апартамента е разчистен от мебели и подготвен за ремонтни дейности. Слънчево, вътрешно, много топло жилище, разположено на среден етаж в сградата. Изложение: югоизток/ северозапад.
Имота се намира до две метростанции, до две детски градини, болница Доверие, училище и удобни транспортни връзки, два хипермаркета, пазар и др..
Отлично поддържани общи части с контролиран достъп.
Среден етаж. Възможност за създаване на уютно тристайно жилище. Поддържана сграда. Комуникативно и същевременно тихо място за живеене.
Обади се сега и цитирай този код 691774
Особености
Панел
Асансьор
За контакт:
088 21 21 450
Брокер:
Клиентски център АДРЕС Кантора Южни райони
088 21 21 450
Още оферти от брокера: Продава | Дава под наем | Купува | Наема
Агенция:
АДРЕС НЕДВИЖИМИ ИМОТИ
088 21 21 450
АДРЕС НЕДВИЖИМИ ИМОТИ logo
Медал за прослужено време
В imot.bg от 2004 г.
address.imot.bg
Адрес:
област София, гр. София, пл. Света Неделя No 4, ет. 6
http://www.address.bg
ИЗПРАТИ ЗАПИТВАНЕ
ИЗПРАТИ ЗАПИТВАНЕТО

Продава 2-СТАЕН
град София, Овча купел 2
Обява: 1b177702570337454

140 000 €
273 816.20 лв.
История на цената
(2 333 €, 4 562.95 лв./m2)

Не се начислява ДДС
ЗАПАЗИ ОБЯВАТА

Местоположение: град София, Овча купел 2

Допълнителни данни за имотите в района и сравнение с други райони

Покажи

Период

и 4 месеца

* Средните цени са определени чрез медианна стойност