Обяви За нас Контакти
Продава 3-СТАЕН
град София, Бояна
324 842 €
635 335.73 лв.

(2 730 €, 5 339.42 лв./m2)
Цената е без ДДС
История на цената
Коригирана в 3:11 на 14 март, 2026 год.
Обявата е посетена 1042 пъти.
Площ:
119 m2
Етаж:
2-ри от 4
Газ:
НЕ
ТEЦ:
НЕ
Строителство:
Тухла, Ще бъде въведен в експлоатация 2027 г.

Описание на имота:


Гъвкави схеми на плащане!

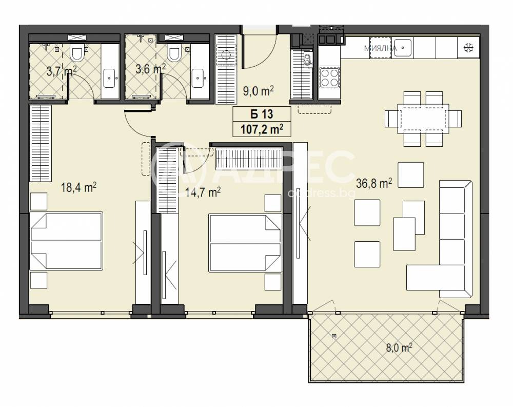
Прекрасен тристаен апартамент с южно изложение, позициониран на първи етаж над партер с РЗП-118,99м2, просторни стаи и разкошна тераса. Върху площ от 107,2м2 са разположени: дневна с кухненски бокс и трапезария-36,8м2, спалня -18,4м2 с 3,7м2 баня към нея, втора спалня-14,7 м2, втора баня с тоалетна- 3,6м2 и тераса-8,0м2. Налични ПМ и гаражи. Термопомпа в цената на всеки апартамент! Без комисион.

Един модерен затворен комплекс в кв. Бояна, проектиран за хора и семейства с усет към качествения живот, търсещи баланса между природата и градската динамика. Локацията осигурява чист въздух, бърз достъп до центъра на столицата и подбрана среда с функционални и стилни жилища. Комплексът предлага нов начин на живот хармония между града и природата. Богато озеленяване, детска площадка, страхотни гледки. Функционално планирани жилища с прави линии и просторни помещения, създадени за реален комфорт и лесно обзавеждане. Впечатляващо малък процент общи части към апартаментите.
Стратегически разположен близо до автобусни линии и с бърз достъп до бул. България и Южната дъга, комплексът гарантира комфортно ежедневие и лесна мобилност. Непосредствената близост до Резиденция Бояна осигурява уникална комбинация от престиж и спокойна жилищна атмосфера едно от престижните и зелени места в района.
Луксозна сграда с модерна фасада - окачена, вентилируема от широкоформатен гранитогрес с изолация от каменна вата 12см. Подово отопление във всички стаи. Саморазливна калциево сулфатната замазка, даваща по-добро топлоотдаване. Опциите за отопление и охлаждане са газов котел: термопомпа или климатици. Настилки по терасите двоен под с гранитогресни плочи с дебелина 2см. Дограмата е висококачествен профил алуминий на етем в цвят 7016 по рал. Парапетите по терасите от алуминий, прахово боядисан. Асансьор със стъклена фасада. Общи части с широкоформатен гранитогрес по подовете.
Контролиран достъп и безопасност за семейството. Уредено и поддържано общо пространство. Без нежелан трафик и преминаващи хора.
Обади се сега и цитирай този код 674460
Особености
Тухла
Асансьор
За контакт:
088 21 21 450
Брокер:
Клиентски център АДРЕС Кантора София Запад
088 21 21 450
Още оферти от брокера: Продава | Дава под наем | Купува | Наема
Агенция:
АДРЕС НЕДВИЖИМИ ИМОТИ
088 21 21 450
АДРЕС НЕДВИЖИМИ ИМОТИ logo
Медал за прослужено време
В imot.bg от 2004 г.
address.imot.bg
Адрес:
област София, гр. София, пл. Света Неделя No 4, ет. 6
http://www.address.bg
ИЗПРАТИ ЗАПИТВАНЕ
ИЗПРАТИ ЗАПИТВАНЕТО

Продава 3-СТАЕН
град София, Бояна
Обява: 1c176346341435151

324 842 €
635 335.73 лв.
История на цената
(2 730 €, 5 339.42 лв./m2)

Цената е без ДДС
ЗАПАЗИ ОБЯВАТА

Местоположение: град София, Бояна

Допълнителни данни за имотите в района и сравнение с други райони

Покажи

Период

и 3 месеца

* Средните цени са определени чрез медианна стойност