Обяви За нас Контакти
Продава 3-СТАЕН
град София, Слатина
330 000 €
645 423.90 лв.

(2 661 €, 5 204.46 лв./m2)
Не се начислява ДДС
История на цената
Публикувана в 13:10 на 20 ноември, 2025 год.
Обявата е посетена 25 пъти.
Площ:
124 m2
Етаж:
6-ти от 7
Газ:
НЕ
ТEЦ:
ДА
Строителство:
Тухла, 2027 г.

Описание на имота:


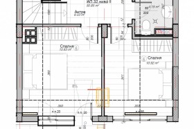
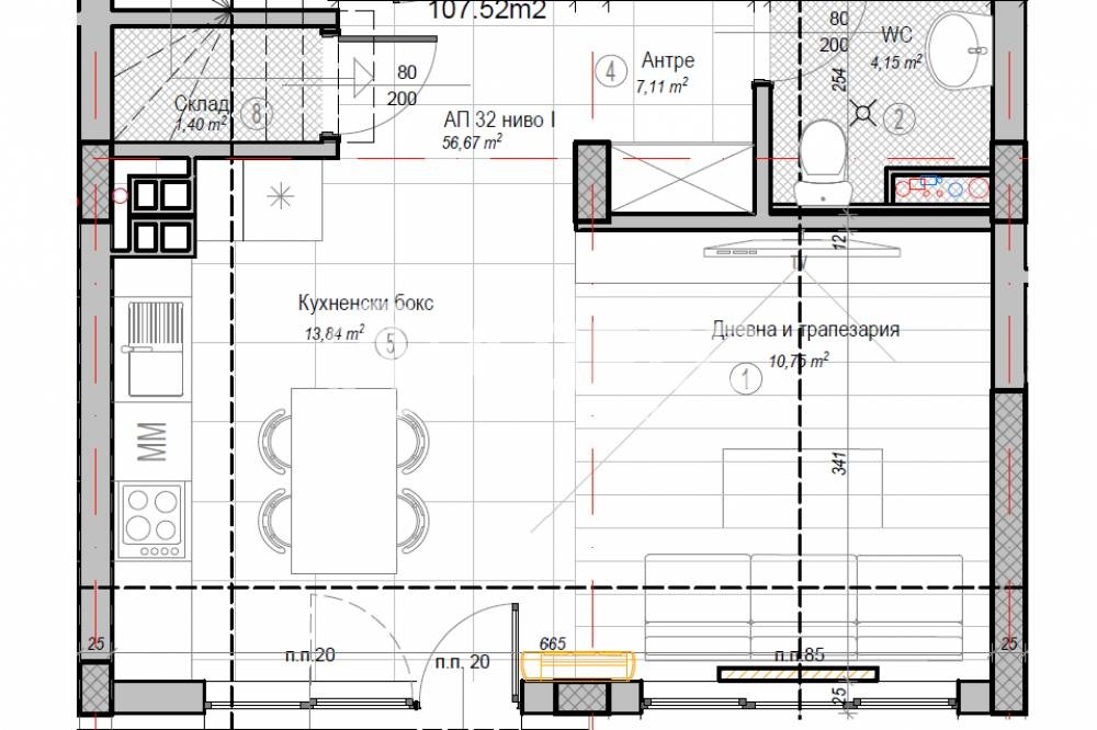
Разкошен тристаен апартамен ттип мезонет, разположен на пети и шести етажи. Жилището е с РЗП-123,11м2 и ЗП-107,52м2. Изключително компактно жилище с отлично разпределение; на първо ниво върху площ от 56,67м2 са разположени: антре, дневна с кухненски бокс и трапезария-24,59м2 с излаз на балкон-10,30м2, баня с тоалетна-4,15м2, склад; на второ ниво върху площ от 50,85м2 са разположени две спални, баня с тоалетна и балкон. Налични ПМ и гаражи. Цените са крайни с включен ДДС.

Сграда с характер и детайл, създадена за модерния градски човек, който не прави компромиси с качеството. С обща РЗП 3986,38 кв.м, проектът се отличава с изчистена архитектура, функционални разпределения и усещане за дискретен престиж. Подземните и наземните гаражи, както и външните паркоместа, осигуряват комфорт и удобство за всяко домакинство.
Отоплението е централно чрез Топлофикация София , а предвидените изводи за климатици и бойлери дават възможност за индивидуално решение и прецизност във финалния завършек.

Сградата е с комплексна фасадна топлоизолация 12 см, PVC дограма 5 7 камерна и висок клас довършителни работи в общите части, създаващи спокойна и подчертано стилна атмосфера. Инсталираният асансьор Orona (Испания) допълва усещането за надеждност и комфорт. Това е архитектура, която говори сама за себе си изчистена, качествена, съвременна, създадена да бъде дом с висока стойност във времето.
Автобус 1,5,6,11,75,5Б,123,288 404,9; Трамвай 23,21 ; близо до бъдеща Метростанция.
Висок клас строителство, реномиран инвеститор с множество завършени сгради.
Отлична локация, район с изградена инфраструктура, бъдеща метростанция, детска градина, училища, магазни.
Обади се сега и цитирай този код 675402
Виж всички обяви в address.bazar.bg или тук
Особености
Тухла
Асансьор
За контакт:
088 21 21 450
Брокер:
Клиентски център АДРЕС Кантора София Запад
088 21 21 450
Още оферти от брокера: Продава | Дава под наем | Купува | Наема
Агенция:
АДРЕС НЕДВИЖИМИ ИМОТИ
088 21 21 450
АДРЕС НЕДВИЖИМИ ИМОТИ logo
Медал за прослужено време
В imot.bg от 2004 г.
address.imot.bg
Адрес:
област София, гр. София, пл. Света Неделя No 4, ет. 6
http://www.address.bg
ИЗПРАТИ ЗАПИТВАНЕ
ИЗПРАТИ ЗАПИТВАНЕТО

Продава 3-СТАЕН
град София, Слатина
Обява: 1c176363702795340

330 000 €
645 423.90 лв.
История на цената
(2 661 €, 5 204.46 лв./m2)

Не се начислява ДДС
ЗАПАЗИ ОБЯВАТА

Местоположение: град София, Слатина