Обяви За нас Контакти
Продава 3-СТАЕН
град София, Бояна
374 615 €
732 683.26 лв.

(2 775 €, 5 427.43 лв./m2)
Цената е с включено ДДС
История на цената
Публикувана в 15:16 на 28 ноември, 2025 год.
Обявата е посетена 124 пъти.
Площ:
135 m2
Етаж:
3-ти от 4
Газ:
ДА
ТEЦ:
НЕ
Строителство:
Тухла, 2025 г.

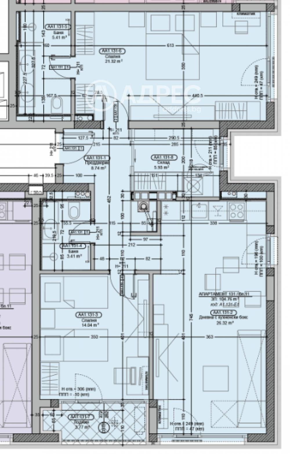
Описание на имота:


Тристаен апартамент със северпзападно-североизточно изложение.

Разполага със всекидневна с кухненски бокс, две спални, две бани с тоалетни, склад и тераса.

Цената е с включено ДДС.
Комплекса е разположен на главна улица между Бояна и Драгалевци, със собствена едноименна спирка на градския транспорт.
Жилищен комплекс с 204 апартамента и ателиета с функционални разпределения и панорамни гледки към града и планината, които се очаква да бъдат завършени през 2025г. Предвидени са красиви междублокови пространства, подземни паркоместа, детски кътове, фитнес и ресторант.
Локация с чист въздух, която се възползва максимално от най-голямата природна даденост на София Витоша.
Обади се сега и цитирай този код 649320
Особености
Тухла
Асансьор
За контакт:
088 21 21 450
Брокер:
Клиентски център АДРЕС Белите Брези
088 21 21 450
Още оферти от брокера: Продава | Дава под наем | Купува | Наема
Агенция:
АДРЕС НЕДВИЖИМИ ИМОТИ
088 21 21 450
АДРЕС НЕДВИЖИМИ ИМОТИ logo
Медал за прослужено време
В imot.bg от 2004 г.
address.imot.bg
Адрес:
област София, гр. София, пл. Света Неделя No 4, ет. 6
http://www.address.bg
ИЗПРАТИ ЗАПИТВАНЕ
ИЗПРАТИ ЗАПИТВАНЕТО

Продава 3-СТАЕН
град София, Бояна
Обява: 1c176433576339886

374 615 €
732 683.26 лв.
История на цената
(2 775 €, 5 427.43 лв./m2)

Цената е с включено ДДС
ЗАПАЗИ ОБЯВАТА

Местоположение: град София, Бояна

Допълнителни данни за имотите в района и сравнение с други райони

Покажи

Период

* Средните цени са определени чрез медианна стойност