Обяви 0 За нас Контакти
Продава 3-СТАЕН
град София, Манастирски ливади
357 462 €
699 134.90 лв.

(3 372 €, 6 595.06 лв./m2)
Не се начислява ДДС
История на цената
Коригирана в 3:10 на 6 май, 2026 год.
Обявата е посетена 1550 пъти.
Площ:
106 m2
Етаж:
1-ви от 4
Газ:
НЕ
ТEЦ:
НЕ
Строителство:
Тухла, Ще бъде въведен в експлоатация 2027 г.

Описание на имота:


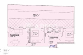
Тристаен апартамент с РЗП-105,60м2, ЗП-92,33м2 със следното разпределение: на ниво партер са разположени: антре, дневна с трапезария и кухненски бокс- 28,06м2, веранда и двор-102,97м2, две спални -13,40м2 и 14,10м2, две бани с тоалетни - 4,42м2 и 4,78м2. Изводи за термопомпа, при желание може и подово отопление. Подземни ПМ и гаражи.

BOUTIQUE новият стандарт за градски лукс в Манастирски ливади.

Представяме ви BOUTIQUE ексклузивна жилищна сграда в манастирски ливади, отличаваща се с впечатляваща архитектура, премиум изпълнение и усещане за уединение в сърцето на южните квартали.

Проектът включва само 10 внимателно проектирани жилища, сред които два емблематични мезонета. Партерните апартаменти разполагат със собствени частни градини, превръщащи ежедневието в истинско спокойствие. Към улицата са ситуирани две представителни офис помещения.

Локацията осигурява перфектна свързаност непосредствен достъп до бул. България и Околовръстен път, както и близост до търговски центрове, образователни институции и зелени пространства.

BOUTIQUE дом, който съчетава стил, комфорт и престиж.
Удобен транспорт, бърз достъп до Околовръстен път и бул. България. Автобус 64,304,X10, Тролей 2. В района има детска градина, супермаркет, фитнес.
Бутикова луксозна сграда, съчетаваща модерна архитектура, престижна локация и висок клас изпълнение.
Отлична локация в район с изградена инфраструктура.
Обади се сега и цитирай този код 676862
Особености
Тухла
Асансьор
За контакт:
088 21 21 450
Брокер:
Клиентски център АДРЕС Кантора София Запад
088 21 21 450
Още оферти от брокера: Продава | Дава под наем | Купува | Наема
Агенция:
АДРЕС НЕДВИЖИМИ ИМОТИ
088 21 21 450
АДРЕС НЕДВИЖИМИ ИМОТИ logo
Медал за прослужено време
В imot.bg от 2004 г.
address.imot.bg
Адрес:
област София, гр. София, пл. Света Неделя No 4, ет. 6
http://www.address.bg
ИЗПРАТИ ЗАПИТВАНЕ
ИЗПРАТИ ЗАПИТВАНЕТО

Продава 3-СТАЕН
град София, Манастирски ливади
Обява: 1c176553271850048

357 462 €
699 134.90 лв.
История на цената
(3 372 €, 6 595.06 лв./m2)

Не се начислява ДДС
ЗАПАЗИ ОБЯВАТА

Местоположение: град София, Манастирски ливади

Допълнителни данни за имотите в района и сравнение с други райони

Покажи

Период

и 5 месеца

* Средните цени са определени чрез медианна стойност