Обяви 0 За нас Контакти
Продава 3-СТАЕН
град София, с. Бистрица
219 300 €
428 913.52 лв.

(2 031 €, 3 972.29 лв./m2)
Цената е без ДДС
История на цената
Публикувана в 15:40 на 26 януари, 2026 год.
Обявата е посетена 1270 пъти.
Площ:
108 m2
Етаж:
1-ви от 4
Газ:
НЕ
ТEЦ:
НЕ
Строителство:
Тухла, 2026 г.

Описание на имота:


Представяме ви изключителен апартамент в престижен комплекс, създаден за хора, които ценят хармонията между комфорт, природа и модерен начин на живот. Имотът се отличава с функционално разпределение, просторни помещения и изобилие от естествена светлина, които създават усещане за уют и елегантност. жилища комфортни апартаменти , мезонети с просторни тераси с изумителни гледки и изискани мезонети със самостоятелен двор, даващи усещане за живот в къща.

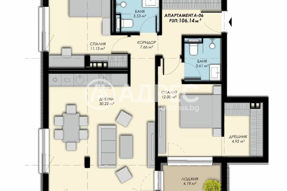
Апартаментът е разположен на трети етаж на сградата, разполага с просторна дневна 30 кв.м, две спални и две бани и лоджия.


Разположен в живописния район на Бистрица в близост до Витоша планина, любителите на природата ще оценят близостта до планината, която предлага множество възможности за активен отдих и релакс на открито

Локацията е внимателно подбрана за да осигури едновременно близост до детски градини, училища, магазини и градски транспорт, така и разнообразни възможности за спорт, развлечения и връзка с природата.

Модерен затворен комплекс от ново поколение, разположен в живописния район на Бистрица, в подножието на Витоша планина. Проектът съчетава елегантна архитектура, висок клас материали и внимателно планирана паркова среда.

Комплексът предлага:


изцяло подземен паркинг с топла връзка към всички сгради,


вътрешен двор без автомобили,


фонтани, алеи и зони за отдих,


спортни и детски площадки,


денонощна охрана и контролиран достъп.


Затворен комплекс в паркова среда с денонощна охрана
Изумителни гледки във всички посоки
Комуникативна локация в близост до градски транспорт, магазини и учебни заведения
Уютен и елегантен комплекс, където хармонията и разкоша се преплитат
Сградите са разположен в паркова среда с фонтани и изцяло подземно паркиране
Комфортни жилища с индивидуални дворове или просторни тераси с изумителни гледки
Обади се сега и цитирай този код 625990
Особености
Тухла
Асансьор
С гараж
За контакт:
088 21 21 450
Брокер:
Клиентски център АДРЕС Източна София
088 21 21 450
Още оферти от брокера: Продава | Дава под наем | Купува | Наема
Агенция:
АДРЕС НЕДВИЖИМИ ИМОТИ
088 21 21 450
АДРЕС НЕДВИЖИМИ ИМОТИ logo
Медал за прослужено време
В imot.bg от 2004 г.
address.imot.bg
Адрес:
област София, гр. София, пл. Света Неделя No 4, ет. 6
http://www.address.bg
ИЗПРАТИ ЗАПИТВАНЕ
ИЗПРАТИ ЗАПИТВАНЕТО

Продава 3-СТАЕН
град София, с. Бистрица
Обява: 1c176943481360319

219 300 €
428 913.52 лв.
История на цената
(2 031 €, 3 972.29 лв./m2)

Цената е без ДДС
ЗАПАЗИ ОБЯВАТА

Местоположение: град София, с. Бистрица

Допълнителни данни за имотите в района и сравнение с други райони

Покажи

Период

и 5 месеца

* Средните цени са определени чрез медианна стойност