Обяви За нас Контакти
Продава 3-СТАЕН
град София, Люлин 2
170 000 €
332 491.10 лв.

(2 048 €, 4 005.54 лв./m2)
Не се начислява ДДС
История на цената
Коригирана в 3:10 на 28 февруари, 2026 год.
Обявата е посетена 673 пъти.
Площ:
83 m2
Етаж:
6-ти от 10
Газ:
НЕ
ТEЦ:
ДА
Строителство:
Тухла, Въведен в експлоатация 2025 г.

Описание на имота:






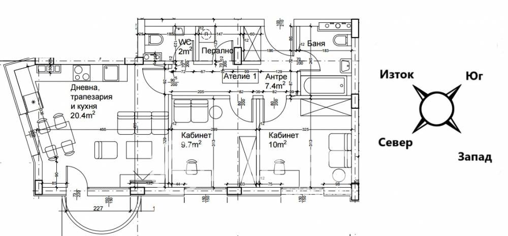
Тристайно ателие със застроена площ от 69,5 кв.м., състоящо се от входно антре, дневна с кухненски бокс, две спални, баня с тоалетна, отделна тоалетна, мокро помещение и балкон.








Жилищна сграда NEW LULIN 2 е разположена в район с добре развита инфраструктура, на ул. Ицках Грациани. В непосредствена близост до Околовръстен път, локацията предлага отлична комуникативност и лесен автомобилен достъп от всички страни. За удобство на бъдещите обитатели, разчитащи на масовия градски транспорт са на разположение спирки на автобусния и тролейбусен транспорт, а на 3 минути пешеходно разстояние ще се намира Метростанция Люлин 2 от планираното разширение на Линия 1.

ТРАНСПОРТ
Автобусни спирки на линии 81, 82, 108, 111;
Тролейбусна спирка на линия 6;
Бъдеща метростанция на линия 1 и линия 2;




Тухлена сграда пред акт 15!

Сградата е на 10 етажа, с разгъната застроена площ от 7345 кв. м и впечатлява с идеално виждане на модерния градски човек за комфортно жилище, съчетано с функционалност и практичност. Дизайнът е резултат от съвместната работа на дизайнерите и инвеститора, с цел създаване усещане за стабилен и уютен дом, за спокойствие и хармония. Жилищата са с удобно разпределение, изчистени линии и с внимание към детайлите.

Сградата включва общо 98 апартамента и ателиета, магазини. Всяко жилище
има достъп до стълбище и два асансьора, осигуряващ връзка към всички етажи
от сутерен до 10-ти етаж. Сградата разполага с два входа, от ул. Ицках
Грациани . Магазините са, разположени на партерно ниво, имат обособени
самостоятелни входове и складови помещения към тях. Подхода към сградата е
от улица Добринова скала и ул. Ицках Грациани. Предвидени са 29 подземни и 40 надземни паркоместа, както и над 30 броя стойки за велосипеди.

Монолитна стоманобетонна конструкция, стоманобетонен плосък покрив в периферията, на който има 45 градусови скосения с хидро и топло изолация.

ОТОПЛИТЕЛНА ИНСТАЛАЦИЯ И ВЕНТИЛАЦИЯ

Сградата ще бъде на ТЕЦ. Ще има изградена централна абонатна станция, разположена в сутерена на сградата. Общите помещения на всеки апартамент са снабдени с разводки за климатик.

ДОГРАМА

Kьомерлинг Петкамерна PVC дограма с двоен стъклопакет и нискоемисийно стъкло.

Общите части ще са луксозно изградени с LED осветление и декоративна мазилка. Стълбището е предвидено от естествен цветен камък.

ФАСАДА
Стените ще са изградени с тухли с дебелина 25 см и
Особености
Тухла
Асансьор
За контакт:
088 21 21 450
Брокер:
Клиентски център АДРЕС Кантора Надежда
088 21 21 450
Още оферти от брокера: Продава | Дава под наем | Купува | Наема
Агенция:
АДРЕС НЕДВИЖИМИ ИМОТИ
088 21 21 450
АДРЕС НЕДВИЖИМИ ИМОТИ logo
Медал за прослужено време
В imot.bg от 2004 г.
address.imot.bg
Адрес:
област София, гр. София, пл. Света Неделя No 4, ет. 6
http://www.address.bg
ИЗПРАТИ ЗАПИТВАНЕ
ИЗПРАТИ ЗАПИТВАНЕТО

Продава 3-СТАЕН
град София, Люлин 2
Обява: 1c176978013070082

170 000 €
332 491.10 лв.
История на цената
(2 048 €, 4 005.54 лв./m2)

Не се начислява ДДС
ЗАПАЗИ ОБЯВАТА

Местоположение: град София, Люлин 2

Допълнителни данни за имотите в района и сравнение с други райони

Покажи

Период

и 3 месеца

* Средните цени са определени чрез медианна стойност