Обяви За нас Контакти
Продава 3-СТАЕН
град София, Люлин 7
177 000 €
346 181.91 лв.

(2 011 €, 3 933.17 лв./m2)
Не се начислява ДДС
История на цената
Публикувана в 12:50 на 26 март, 2026 год.
Обявата е посетена 74 пъти.
Площ:
88 m2
Етаж:
1-ви от 8
Газ:
НЕ
ТEЦ:
ДА
Строителство:
Панел, Въведен в експлоатация 1980 - 1989 г.

Описание на имота:


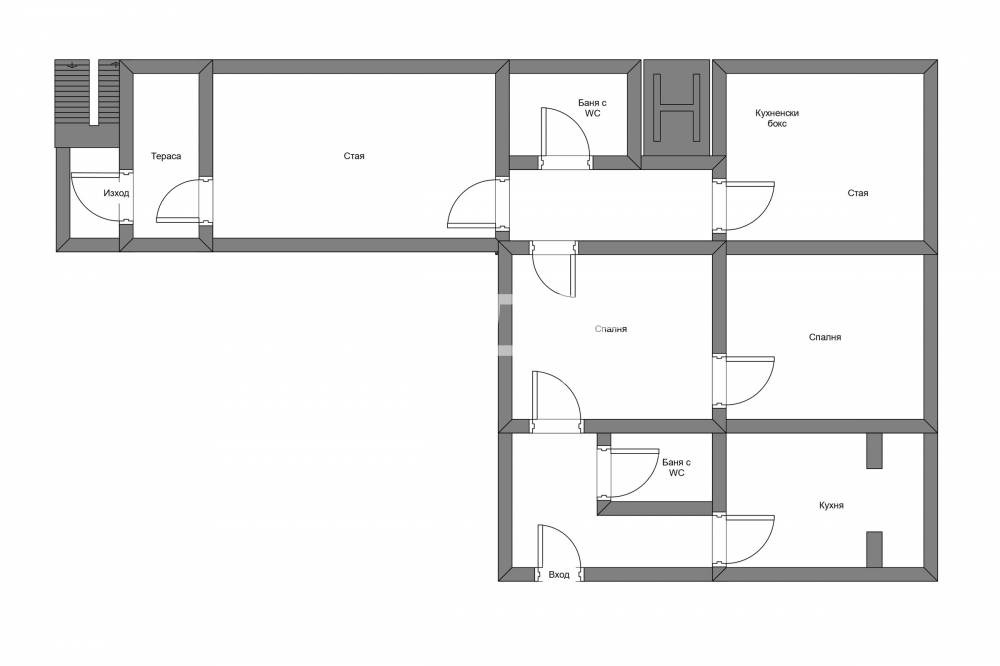
Просторен апартамент, обособен като две жилища, подходящ за две семейства или инвестиция. Два отделни входа, две кухни, две бани и две спални. Едната част е напълно завършена с модерна кухня по поръчка и гранитогрес, другата за освежаване.
Алуминиева дограма, външна изолация, рампа за инвалиден достъп.
Към апартамента има и мазе. Отоплението е на Тец. Изложение - североизток/ югозапад.
Отлична локация до училище, две детски градини, Мол Люлин и метро (300 м).
Панелна сграда от 1980г с добри общи части и контролиран достъп.
*Свободно паркиране
*Тихо, спокойно и комуникативно място
Обади се сега и цитирай този код 665947
Особености
Панел
Асансьор
За контакт:
088 21 21 450
Брокер:
Клиентски център АДРЕС Кантора София Запад
088 21 21 450
Още оферти от брокера: Продава | Дава под наем | Купува | Наема
Агенция:
АДРЕС НЕДВИЖИМИ ИМОТИ
088 21 21 450
АДРЕС НЕДВИЖИМИ ИМОТИ logo
Медал за прослужено време
В imot.bg от 2004 г.
address.imot.bg
Адрес:
област София, гр. София, пл. Света Неделя No 4, ет. 6
http://www.address.bg
ИЗПРАТИ ЗАПИТВАНЕ
ИЗПРАТИ ЗАПИТВАНЕТО

Продава 3-СТАЕН
град София, Люлин 7
Обява: 1c177452220646448

177 000 €
346 181.91 лв.
История на цената
(2 011 €, 3 933.17 лв./m2)

Не се начислява ДДС
ЗАПАЗИ ОБЯВАТА

Местоположение: град София, Люлин 7

Допълнителни данни за имотите в района и сравнение с други райони

Покажи

Период

и 3 месеца

* Средните цени са определени чрез медианна стойност