Обяви За нас Контакти
Продава МНОГОСТАЕН
град София, Мусагеница
300 000 €
586 749.00 лв.

(2 679 €, 5 239.67 лв./m2)
Не се начислява ДДС
История на цената
Публикувана в 13:30 на 12 февруари, 2026 год.
Обявата е посетена 304 пъти.
Площ:
112 m2
Етаж:
4-ти от 7
Газ:
НЕ
ТEЦ:
ДА
Строителство:
Тухла, 1980 - 1989 г.

Описание на имота:


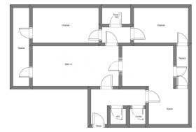
Четиристаен/многостаен, тухлен апартамент в кв. Мусагеница. Апартаментът е светъл и просторен, състои се от: коридор, хол, трапезария, кухня, две непреходни спални, баня с тоалетна, тоалетна за гости, килер/перално помещение и две тераси, едната много голяма и просторна.

Апартаментът е с чиста площ по НА - 97.34 кв.м, в която квадратура не са включени двете тераси, които са около 15 кв.м., мазе - 6.29 кв.м.

Апартаментът е с нова ПВЦ дограма, сменени хоризонтални и вертикални щрангове.

Имотът разполага с архитектурен план, съобразно който са възможни различни преустройства. Апартаментът се нуждае от основен ремонт, което предоставя отлична възможност за реализиране на индивидуален интериорен проект и повишаване на стойността му.

Подходящ е както за лично ползване, така и за инвестиция.
Има удобен достъп до обществен транспорт, магазини, училища, детски градини и паркове. Локацията е изключително комуникативна в близост до метростанция Мусагеница, университети, училища, магазини и зелени площи, с удобен достъп до основни пътни артерии.
Сградата е с ремонтиран покрив, сменена дограма във входа, който е с поддържани общи части, асансьор. ТЕЦ, домофон, сменена входна врата с чип достъп
- свободно паркиране около блока

- от терасата се открива хубава гледка към парк /бивш парк Мусагеница/.

- имотът е разположен на среден етаж, много топъл и слънчев, ниски консумативни разходи.

- добро изложение, осигуряващо естествена светлина: хол и едната спалня - югоизток, другите стаи - северозапад

- отличен потенциал за преустройство и модернизиране според вкуса на новите собственици.
Обади се сега и цитирай този код 680278
Особености
Тухла
Асансьор
За контакт:
088 21 21 450
Брокер:
Клиентски център АДРЕС Кантора Лозенец
088 21 21 450
Още оферти от брокера: Продава | Дава под наем | Купува | Наема
Агенция:
АДРЕС НЕДВИЖИМИ ИМОТИ
088 21 21 450
АДРЕС НЕДВИЖИМИ ИМОТИ logo
Медал за прослужено време
В imot.bg от 2004 г.
address.imot.bg
Адрес:
област София, гр. София, пл. Света Неделя No 4, ет. 6
http://www.address.bg
ИЗПРАТИ ЗАПИТВАНЕ
ИЗПРАТИ ЗАПИТВАНЕТО

Продава МНОГОСТАЕН
град София, Мусагеница
Обява: 1e177089580307548

300 000 €
586 749.00 лв.
История на цената
(2 679 €, 5 239.67 лв./m2)

Не се начислява ДДС
ЗАПАЗИ ОБЯВАТА

Местоположение: град София, Мусагеница

Допълнителни данни за имотите в района и сравнение с други райони

Покажи

Период

и 2 месеца

* Средните цени са определени чрез медианна стойност