Обяви За нас Контакти
Продава КЪЩА
град София, с. Бистрица
775 000 €
1 515 768.25 лв.

(2 348 €, 4 592.29 лв./m2)
Не се начислява ДДС
История на цената
Коригирана в 3:10 на 1 ноември, 2025 год.
Обявата е посетена 269 пъти.
Площ:
330 m2
Двор:
1050 m2
Газ:
НЕ
ТEЦ:
НЕ
Строителство:
Тухла, 2025 г.

Описание на имота:


Къща в с.Бистрица, проектирана с внимание към детайла, съчетаваща идеален баланс между спокойствието на природата и удобствата на градската среда.

Параметри:

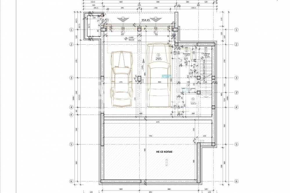
Площ на парцела 1048 кв.м., обща ЗП 330 кв.м.

Първи етаж 109 кв. м. (65,40 кв. м. е хол/трапезария)
Втори етаж 115 кв. м.
Сутерен 106 кв.м

В сутерена е предвидено място за паркиране на 2 автомобила, като в зависимост от размера им, може да се съберат още 2.

На първи етаж е разположена огромна дневна с излаз на веранда, една спалня(или кабинет) и баня с тоалетна.

На втори етаж са разположени три големи спални, една от тях със собствена баня с тоалетна, втора баня с тоалетна, мокро помещение, предвидена е и сауна.


кв.Бистрица, в близост до Бистришки манастир.
Посочената цена е при етап - акт 14 и включва:

- Изградени Ел и ВИК инсталации

- Изцяло окабеляване за СОТ и видеонаблюдение

- Висок клас ПВЦ дограма Rehau 7 камерна, с троен стъклопакет

- Външна Топлоизолация 20 см

- ВИК на тапи

- Пречиствателна станция модел One2Clean 5, производство на фирма GRAF Германия.

- Резервоар Carat S 3750 л + Система за дъждовна вода Garden Comfort, производство на фирма GRAF Германия. Свързан е с кладенец с постоянен воден капацитет

- Подравнен и изчистен двор

- Завършена рампа (без настилка) към гараж

- Завършена рампа (без настилка) към централен вход

- Подготвени за настилка пътеки около къщата

ЦЕНА След Акт 16 880 000 ЕВРО, в която се включват освен гореописаните параметри и тези:

- Поставена инсталация за подово отопление без термопомпа

- Вътрешна завършеност на мазилка и замазка по БДС

- Гаражни автоматични врати HORMAN

- Входна врата

- Завършени с подова настилка рампи към гараж, централен вход, както и пътеки около къщата

- Завършена фасада по проект с каменни и дървени облицовки

- Подготовка за външни ламелни щори

- Ламелни ограда, гаражни врати и входна врата по улицата

- Метални огради с трите съседни имота

Допълнителни възможности за поставяне на подова настилка от гранитогрес, интериорни врати, завършване на бани с първокачествени материали и санитария, също поставяне на сауна и външно джакузи и други.
Безспорните предимства на имота са разположението му сред чист въздух и тишина, невероятни нескриваеми гледки, хармонията с природата и в същото време бързият и удобен достъп до града.




Обади се сега и цитирай този код 667432
Виж всички обяви в address.bazar.bg или тук
Особености
Тухла
С гараж
За контакт:
088 21 21 450
Брокер:
Клиентски център АДРЕС Кантора Нова София Адрес
088 21 21 450
Още оферти от брокера: Продава | Дава под наем | Купува | Наема
Агенция:
АДРЕС НЕДВИЖИМИ ИМОТИ
088 21 21 450
АДРЕС НЕДВИЖИМИ ИМОТИ logo
Медал за прослужено време
В imot.bg от 2004 г.
address.imot.bg
Адрес:
област София, гр. София, пл. Света Неделя No 4, ет. 6
http://www.address.bg
ИЗПРАТИ ЗАПИТВАНЕ
ИЗПРАТИ ЗАПИТВАНЕТО

Продава КЪЩА
град София, с. Бистрица
Обява: 1j175947870281984

775 000 €
1 515 768.25 лв.
История на цената
(2 348 €, 4 592.29 лв./m2)

Не се начислява ДДС
ЗАПАЗИ ОБЯВАТА

Местоположение: град София, с. Бистрица

Допълнителни данни за имотите в района и сравнение с други райони: Търсене в АРХИВ 2013 - 2025 г.











Добави/редактирай
вид имот и район
*Средните цени са определени чрез медиана стойност.