Обяви За нас Контакти
Продава МАГАЗИН
град София, Хиподрума
237 000 €
463 531.71 лв.

(2 963 €, 5 795.12 лв./m2)
Цената е с включено ДДС
История на цената
Коригирана в 3:10 на 5 декември, 2025 год.
Обявата е посетена 3318 пъти.
Площ:
80 m2
Етаж:
Партер от 6
Газ:
НЕ
ТEЦ:
ДА
Строителство:
Тухла, 2024 г.

Описание на имота:


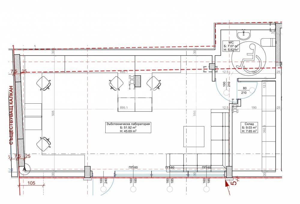
Помещение със статут на зъботехническа лаборатория в нова сграда с Акт 16 от 2024, застроена площ от 80 кв.м., разположено на партерен етаж със самостоятелен вход, осигуряващ удобен достъп за персонал и клиенти.

Имотът е на шпакловка и замазка и е функционално разпределен, като включва: основно помещение, предназначено за зъботехническа дейност, складово помещение за съхранение на инструменти и консумативи, както и санитарен възел. Пространството е подходящо за различни видове зъботехнически услуги и разполага с добра естествена светлина и възможност за гъвкаво вътрешно преустройство според нуждите на бизнеса.

Към имота се продава и паркомясто за 31 000 Евро.
Намира се в квартал 'Хиподрума', в близост до 'Медицинска академия' и метростанция 'Красно село'.
Сградата е нова, тухлена, с Акт 16 от 2024
Имотът се намира в комуникативен район с лесен достъп и добра видимост, което го прави отлично предложение както за зъботехническа дейност, така и за друг вид медицинска или лабораторна практика. Подходящ е както за собствено ползване, така и за инвестиция с възможност за отдаване под наем.
Обади се сега и цитирай този код 493387
Особености
Тухла
За контакт:
088 21 21 450
Брокер:
Клиентски център АДРЕС Кантора Нова София Адрес
088 21 21 450
Още оферти от брокера: Продава | Дава под наем | Купува | Наема
Агенция:
АДРЕС НЕДВИЖИМИ ИМОТИ
088 21 21 450
АДРЕС НЕДВИЖИМИ ИМОТИ logo
Медал за прослужено време
В imot.bg от 2004 г.
address.imot.bg
Адрес:
област София, гр. София, пл. Света Неделя No 4, ет. 6
http://www.address.bg
ИЗПРАТИ ЗАПИТВАНЕ
ИЗПРАТИ ЗАПИТВАНЕТО

Продава МАГАЗИН
град София, Хиподрума
Обява: 1l174238447839428

237 000 €
463 531.71 лв.
История на цената
(2 963 €, 5 795.12 лв./m2)

Цената е с включено ДДС
ЗАПАЗИ ОБЯВАТА

Местоположение: град София, Хиподрума

Допълнителни данни за имотите в района и сравнение с други райони

Покажи

Период

* Средните цени са определени чрез медианна стойност