Обяви За нас Контакти
Продава МАГАЗИН
град София, Света Троица
499 000 €
975 959.17 лв.

(2 495 €, 4 879.80 лв./m2)
Цената е без ДДС
История на цената
Публикувана в 16:05 на 6 април, 2026 год.
Обявата е посетена 30 пъти.
Площ:
200 m2
Етаж:
Партер от 5
Газ:
НЕ
ТEЦ:
ДА
Строителство:
Тухла, Въведен в експлоатация 2015 г.

Описание на имота:


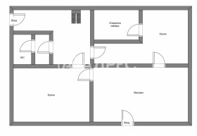
Площ:200 кв.м.
Разпределение: голяма търговска зала, транжорна,голяма хладилна камера, кухня, санитарен възел, сервизно помещение и склад. Изградена вентилация. Магазина е с наемател .
Цената е без ДДС.
Разработен работещ магазин на много добра локация.
Тухлена сграда
С два входа; Разработен магазин,оборудван с машини , хладилна камера,конвектомат,хладилни витрини, паркоместо ,и др. Височина на таваните 3.80м; Отопление на ТЕЦ; Климатизация; Аспирация.
Обади се сега и цитирай този код 615155
Особености
Тухла
Обзаведен
За контакт:
088 21 21 450
Брокер:
Клиентски център АДРЕС Кантора Център Адрес
088 21 21 450
Още оферти от брокера: Продава | Дава под наем | Купува | Наема
Агенция:
АДРЕС НЕДВИЖИМИ ИМОТИ
088 21 21 450
АДРЕС НЕДВИЖИМИ ИМОТИ logo
Медал за прослужено време
В imot.bg от 2004 г.
address.imot.bg
Адрес:
област София, гр. София, пл. Света Неделя No 4, ет. 6
http://www.address.bg
ИЗПРАТИ ЗАПИТВАНЕ
ИЗПРАТИ ЗАПИТВАНЕТО

Продава МАГАЗИН
град София, Света Троица
Обява: 1l177548072627550

499 000 €
975 959.17 лв.
История на цената
(2 495 €, 4 879.80 лв./m2)

Цената е без ДДС
ЗАПАЗИ ОБЯВАТА

Местоположение: град София, Света Троица

Допълнителни данни за имотите в района и сравнение с други райони

Покажи

Период

и 3 месеца

* Средните цени са определени чрез медианна стойност