Обяви За нас Контакти
Продава ПАРЦЕЛ
град София, Модерно предградие
1 553 500 €
3 038 381.91 лв.

(500 €, 977.92 лв./m2)
Не се начислява ДДС
История на цената
Публикувана в 16:08 на 12 ноември, 2025 год.
Обявата е посетена 46 пъти.
Площ:
3107 m2
Регулация:
ДА
Ток:
ДА
Вода:
ДА

Описание на имота:


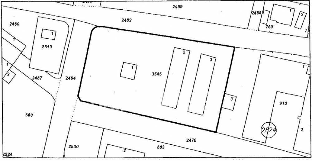
Предлагам поземлен имот с площ от 3107 кв,находящ се в кв. Модерно предградие,Орион

В имота има построени две халета и една къща, всички с отделен идентификатор.
Намира се на втора линия от бул. Сливница. Бързо развиващ се район. Бърза връзка и с бул.Европа

Непосредствена близост до БИЛА,магазинини,складове.
Плътност на застрояване 60%

Кинт 3,5

Минимално озеленена площ 40%

Поземлен имот с идентификатор 68134.2824.3545

68134.2824.3545.1

68134.2824.3545.2

68134.2824.3545.3

Равен терен,предназначен за смесено или жилищно строителство.
Има досъп до имота от три улици. Възможност за построяване на сграда със смесено предназначение от които два етажа са за офис площи или търговски обекти и четири етажа жилищтни площи.
Обади се сега и цитирай този код 663598
Виж всички обяви в address.bazar.bg или тук
За контакт:
088 21 21 450
Брокер:
Клиентски център АДРЕС Кантора Център Адрес
088 21 21 450
Още оферти от брокера: Продава | Дава под наем | Купува | Наема
Агенция:
АДРЕС НЕДВИЖИМИ ИМОТИ
088 21 21 450
АДРЕС НЕДВИЖИМИ ИМОТИ logo
Медал за прослужено време
В imot.bg от 2004 г.
address.imot.bg
Адрес:
област София, гр. София, пл. Света Неделя No 4, ет. 6
http://www.address.bg
ИЗПРАТИ ЗАПИТВАНЕ
ИЗПРАТИ ЗАПИТВАНЕТО

Продава ПАРЦЕЛ
град София, Модерно предградие
Обява: 1r176295648762309

1 553 500 €
3 038 381.91 лв.
История на цената
(500 €, 977.92 лв./m2)

Не се начислява ДДС
ЗАПАЗИ ОБЯВАТА

Местоположение: град София, Модерно предградие