Обяви За нас Контакти
Продава ПАРЦЕЛ
град София, гр. Банкя
7 850 000 €
15 353 265.50 лв.

(212 €, 414.64 лв./m2)
Не се начислява ДДС
История на цената
Публикувана в 9:50 на 26 ноември, 2025 год.
Обявата е посетена 17 пъти.
Площ:
37011 m2
Регулация:
ДА
Вода:
ДА

Описание на имота:


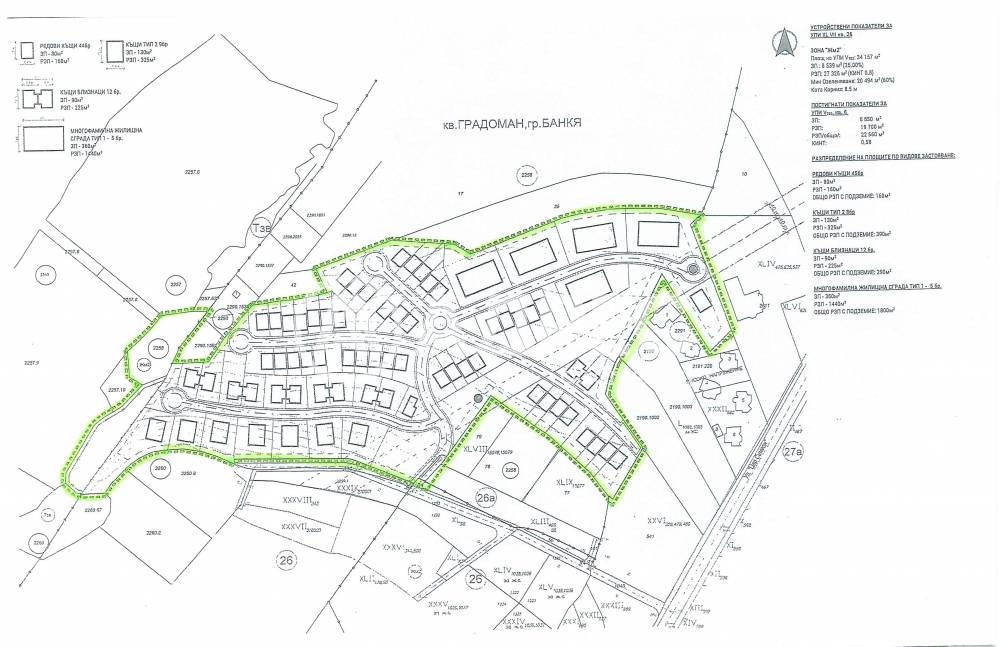
Поземлен имот (УПИ) с отлични параметри и стратегическо местоположение само на 150 метра от главна улица и в непосредствена близост до популярната Пътека на здравето в гр.Банкя.

Параметри на застрояване - зона ЖМ2:


Плътност на застрояване: 25% 30%


КИНТ: 0.8 1.0


Озеленяване: 60%


Кота корниз: 8.5 м 10 м


.Благодарение на тези показатели имотът е подходящ за изграждане на жилищен комплекс от затворен тип, семейни къщи или зона с модерна архитектура и простор.
На метри от ул. 'Цар Симеон'. Граничи с известната - ' Пътека на здравето'.
Парцелът се предлага за обявената цена или срещу обезщетение 25%.


Равен и лесен за строителство терен;


Прекрасна панорама и зелена околност;


Близо до Пътеката на здравето и градска инфраструктура;


Подходящ за инвестиция в жилищен проект;


Перспективна и търсена локация.


Обади се сега и цитирай този код 673424
Виж всички обяви в address.bazar.bg или тук
За контакт:
088 21 21 450
Брокер:
Клиентски център АДРЕС Кантора Лозенец
088 21 21 450
Още оферти от брокера: Продава | Дава под наем | Купува | Наема
Агенция:
АДРЕС НЕДВИЖИМИ ИМОТИ
088 21 21 450
АДРЕС НЕДВИЖИМИ ИМОТИ logo
Медал за прослужено време
В imot.bg от 2004 г.
address.imot.bg
Адрес:
област София, гр. София, пл. Света Неделя No 4, ет. 6
http://www.address.bg
ИЗПРАТИ ЗАПИТВАНЕ
ИЗПРАТИ ЗАПИТВАНЕТО

Продава ПАРЦЕЛ
град София, гр. Банкя
Обява: 1r176414341073889

7 850 000 €
15 353 265.50 лв.
История на цената
(212 €, 414.64 лв./m2)

Не се начислява ДДС
ЗАПАЗИ ОБЯВАТА

Местоположение: град София, гр. Банкя