Обяви За нас Контакти
Продава ПАРЦЕЛ
град София, Карпузица
480 000 €
938 798.40 лв.

(1 500 €, 2 933.75 лв./m2)
Не се начислява ДДС
История на цената
Публикувана в 18:05 на 22 април, 2026 год.
Обявата е посетена 22 пъти.
Площ:
320 m2
Регулация:
ДА
Ток:
ДА
Вода:
ДА

Описание на имота:


Парцел в кв. Карпузица, София, с площ 320 кв.м и отлична комуникативна локация.

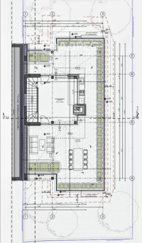
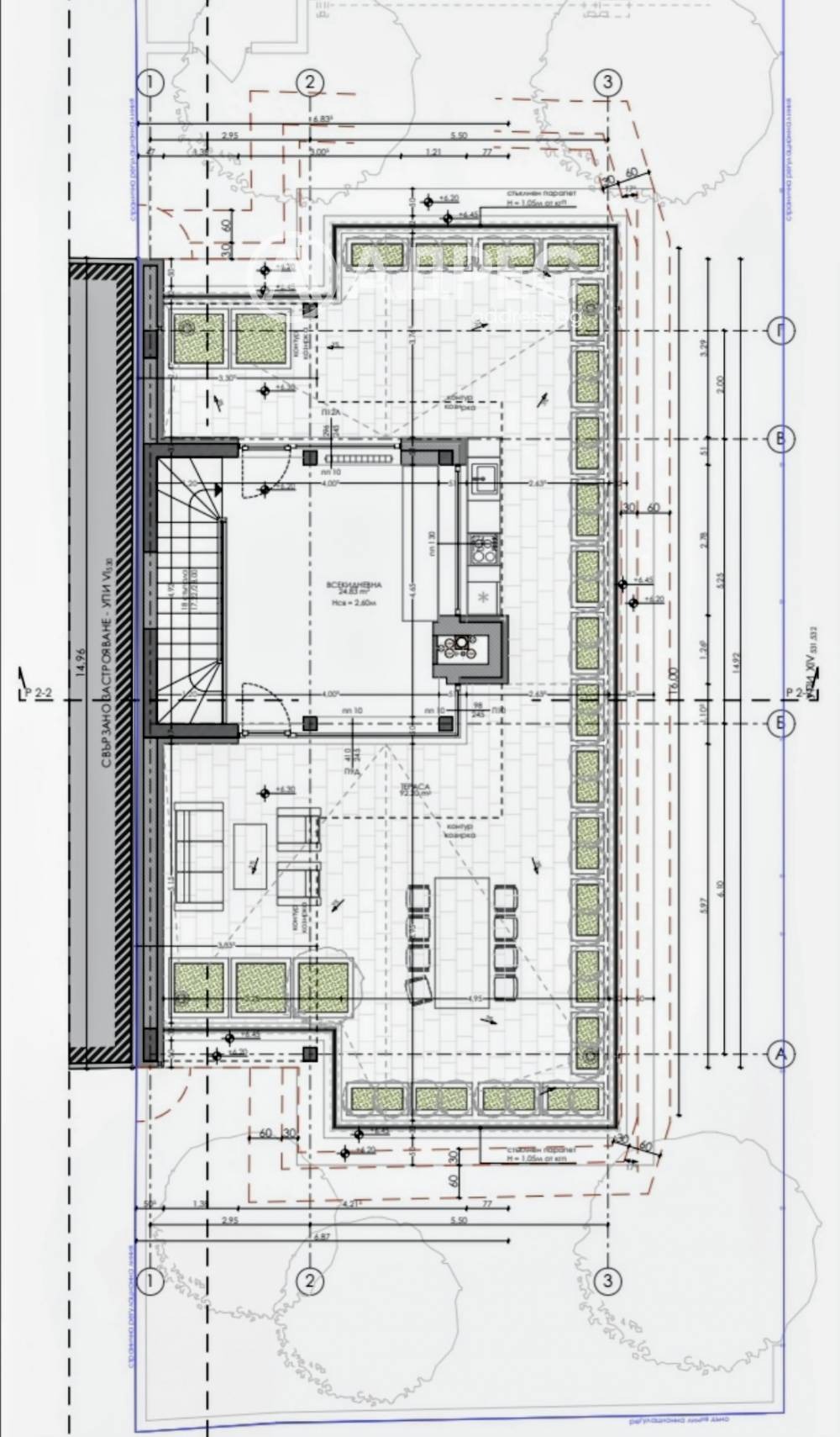
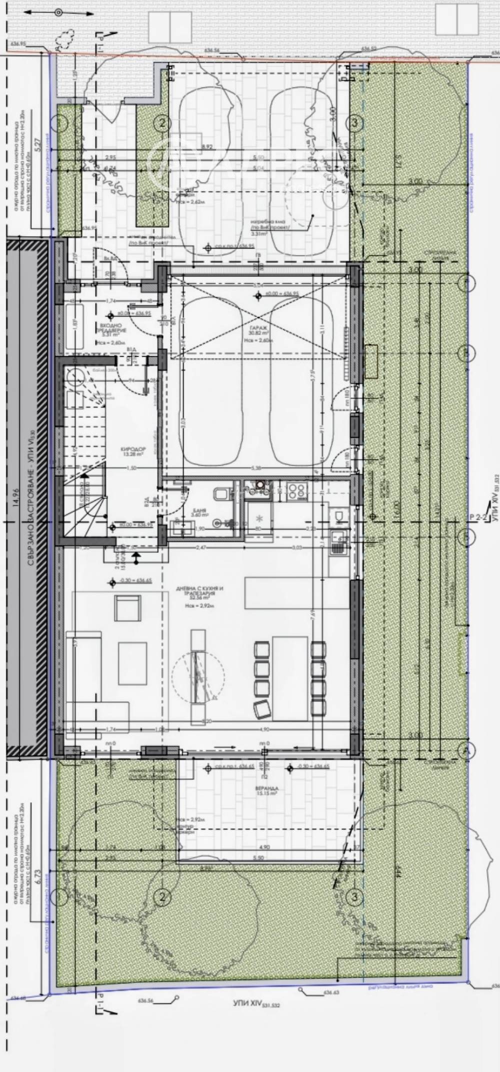
Имотът е равен и разполага с одобрен проект и всички изискуеми разрешителни за изграждане на еднофамилна двуетажна жилищна сграда с РЗП 418 кв.м. Сключен е договор със строителен надзор. Може да се стартира строителството веднага. Предвиден е двор с площ 200 кв.м.

Разпределение:

Първо ниво
Дневна с кухня и трапезария в общо пространство, санитарен възел, сервизно помещение, гараж за два автомобила и две паркоместа пред него.

Второ ниво
Две спални със собствени бани и отделни дрешници тип будоар, два балкона и мокро помещение.

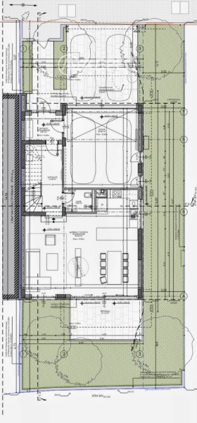
Покривно ниво
Покривна тераса с външна кухня, кът за релакс и изводи за джакузи. Покривът включва изводи за фотоволтаична система.

Имотът ти дава готова концепция и пълна административна готовност за изграждане на модерен семеен дом.
Карпузица е един от най-спокойните и зелени квартали в югозападна София. Районът съчетава тишина, чист въздух и нискоетажно застрояване с бърз достъп до основни булеварди, градски транспорт, училища и търговски обекти. Локацията е предпочитана от семейства заради баланса между уединение и удобна връзка с динамиката на града.
Модерна нова еднофамилна сграда с изчистена архитектурна визия, функционално разпределение и просторни помещения с отлична осветеност. Проектът съчетава комфорт, енергийна ефективност и съвременни технологични решения. Предвидени са просторна покривна тераса, възможност за фотоволтаична система и удобства, отговарящи на висок стандарт на обитаване. Дом, който съчетава стил, практичност и дългосрочна стойност.
Бърз достъп до транспорт на пешеходно разстояние до парцела има автобусни линии и трамвайни спирки, които свързват квартала с центъра и други райони на София. Това дава удобство както за всекидневни пътувания, така и за връзки с основни булеварди.
Училища и детски градини освен близкото 26 СУ 'Йордан Йовков', районът предлага допълнителни учебни и детски заведения на няколко минути пеша.
Медицински услуги в близост болница Райна Княгиня , детска клиника и медицински център са на кратко разстояние, което е важно за семейства и ежедневни нужди.
Търговски и битови удобства на разстояние пеша супермаркети, хранителни магазини, пекарни и дребни услуги са лесно достъпни без нужда от автомобил.
Близък парк и зелени площи в квартала има малки зелени зони и близост до по-големи паркови пространства, подходящи за разходки и спорт на открито.
Разв
За контакт:
088 21 21 450
Брокер:
Клиентски център АДРЕС Източна София
088 21 21 450
Още оферти от брокера: Продава | Дава под наем | Купува | Наема
Агенция:
АДРЕС НЕДВИЖИМИ ИМОТИ
088 21 21 450
АДРЕС НЕДВИЖИМИ ИМОТИ logo
Медал за прослужено време
В imot.bg от 2004 г.
address.imot.bg
Адрес:
област София, гр. София, пл. Света Неделя No 4, ет. 6
http://www.address.bg
ИЗПРАТИ ЗАПИТВАНЕ
ИЗПРАТИ ЗАПИТВАНЕТО

Продава ПАРЦЕЛ
град София, Карпузица
Обява: 1r177687030514797

480 000 €
938 798.40 лв.
История на цената
(1 500 €, 2 933.75 лв./m2)

Не се начислява ДДС
ЗАПАЗИ ОБЯВАТА

Местоположение: град София, Карпузица

Допълнителни данни за имотите в района и сравнение с други райони

Покажи

Период

и 4 месеца

* Средните цени са определени чрез медианна стойност